Terreno Comercial no Terreno Comercial Com Obra Iniciada em Camboriú

  • OPORTUNIDADE ÚNICA NO CENTRO DE CAMBORIÚ – TERRENO COM OBRA INICIADA (FUNDAÇÃO E ESTRUTURA) COMERCIAL À VENDA!
  • Apresentamos terreno comercial com estruturas iniciadas para salas comercias, localizado em área nobre da cidade de Camboriú, bem na praça central, com grande fluxo de pessoas e veículos — ideal para quem busca visibilidade e valorização!

Localização privilegiada:

  • Região extremamente comercial, ao lado de bancos, farmácias, mercados, escolas e demais serviços. Uma das áreas que mais se valoriza na cidade!

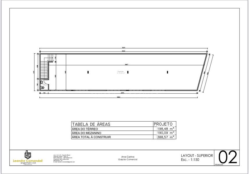
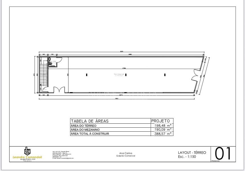
Terreno amplo com 607,50 m² e 388,57 m² de área já construída, distribuídos em dois pavimentos. Estrutura sólida, pronta para receber diversos tipos de projetos, como:

  • Galeria comercial
  • Escritórios ou consultórios
  • Clínica médica ou odontológica
  • Coworking
  • Centro de ensino ou treinamentos
  • Supermercado ou loja âncora
  • Dentre outros…

Destaques do imóvel:

  • Acesso fácil e pavimentado
  • Espaço de estacionamento frontal
  • Construção avançada (estrutura em concreto pronta)
  • Projeto flexível para personalização conforme sua necessidade
  • Alto potencial de valorização e retorno sobre o investimento!
  • Ideal para investidores, construtores ou empresários que desejam estabelecer um negócio em ponto estratégico.
  • Analisa Permuta em veículos.
  • Preço diferenciado a vista.
  • 388,57m² área útil 607,50m² área total
  • 12m² frente | 12m² fundo | 54m² ao sul e 48.50m²m² dimensão do terreno
  • Entre em contato para mais informações, ou agendamento de visita.

Camboriú - Centro

TERRENO COM OBRA INICIADA

388,57 m² de área privativa

607,50 m² de área total

R$ 4.500.000,00

  aceita veículo
Mais Informações via WhatsApp

Os preços, disponibilidades e condições de pagamento poderão ser alterados sem prévia comunicação.